<< Go Back up to Venue

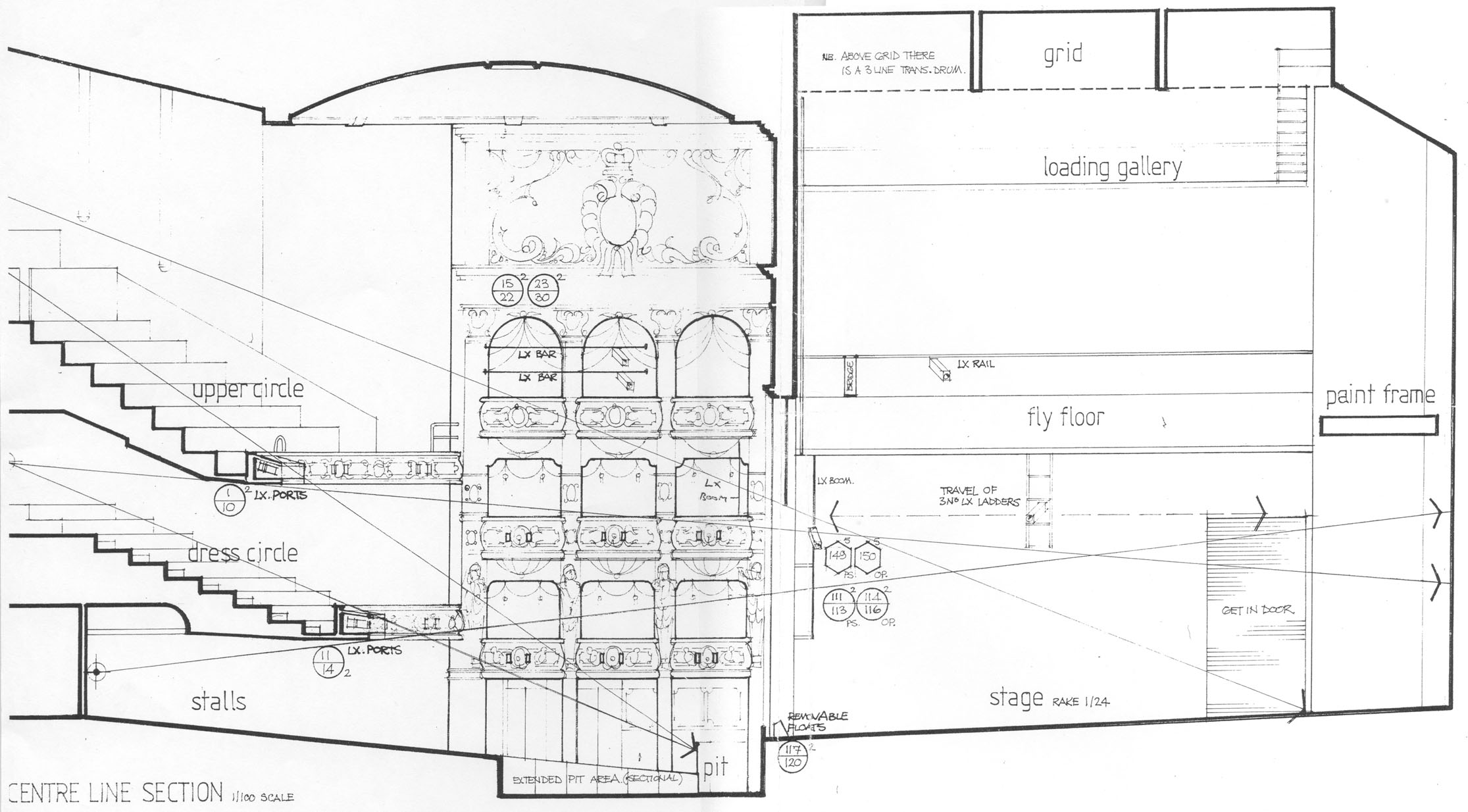
King’s Theatre: Side Elevation with detail for Lighting

If the document is not displaying below click here for the direct link.